
Nouveau funérarium dans l’agglomération de La Rochelle : un équipement pensé pour l’accueil et le bien-être des familles
Maison-Medicale.fr présente aujourd’hui un projet emblématique mené dans l’agglomération de La Rochelle : la construction d’un funérarium moderne, conçu pour offrir aux familles un espace apaisant, fonctionnel et parfaitement conforme aux exigences des établissements liés à la santé et à l’accompagnement des usagers.
Ce nouveau site, imaginé autour du respect, du confort et de la confidentialité, incarne une approche contemporaine des lieux de recueillement.
Un lieu d’accueil structuré comme un parcours de soins

Même s’il ne s’agit pas d’un établissement médical, le funérarium reprend les codes de l’architecture des maisons de santé :
-
Circulation fluide,
-
Séparation des zones publiques et techniques,
-
Espaces d’attente confortables,
-
Accessibilité totale PMR.
Ce fonctionnement, inspiré du secteur santé, permet une prise en charge plus sereine pour les familles et les professionnels du funéraire.
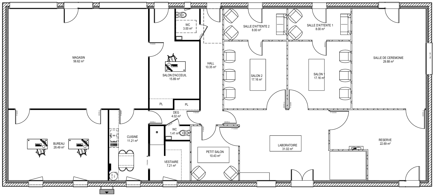
Le bâtiment regroupe :
-
un hall d’accueil accueillant,
-
deux salons de recueillement chacun avec salle d’attente,
-
une salle de cérémonie adaptée aux hommages,
-
un laboratoire technique sécurisé,
-
un magasin d’exposition,
-
des espaces logistiques : cuisine, bureau, vestiaire, sanitaires.
Des aménagements extérieurs pensés pour le confort des usagers

Le site offre :
-
un stationnement dédié, dont plusieurs places PMR,
-
une zone de circulation simplifiée pour les véhicules funéraires,
-
des espaces verts qui participent à l’apaisement,
-
une intégration visuelle cohérente avec l’environnement rochelais.
Un projet qui illustre l’expertise d’Interpro dans les bâtiments à vocation sanitaire et d’accompagnement

Habituée à concevoir maisons médicales, cabinets, pôles de santé et structures paramédicales, Interpro applique ici les mêmes standards :
-
ergonomie des parcours,
-
confort psychologique,
-
conformité réglementaire,
-
maîtrise technique des flux publics/privés.
Ce funérarium devient ainsi un établissement d’accueil respectueux, où chaque espace a été pensé pour accompagner les familles dans les meilleures conditions possibles.
Vous avez un projet de bâtiment de santé ou d’accueil ?
Maison-Medicale.fr et ses partenaires vous accompagnent notamment en Nouvelle-Aquitaine et Charente-Maritime :
👉 maisons de santé
👉 cabinets médicaux
👉 pôles paramédicaux
👉 laboratoires
👉 établissements spécialisés
N’hésitez pas à nous contacter pour échanger sur votre projet.
Partager cet article !
écrit par : Maison Médicale
Maison Médicale est un site dédié à la construction de bâtiments pour professionnels de santé. Nous construisons des maisons de santé, maisons médicales, centres de soins et bien évidemment des cabinets médicaux, dans toute la France, depuis plus de 30 ans !
Résumé de l'article :
Actualités et Conseils
A découvrir sur Maison Médicale :









